Plot 116: Allan – Mid Terrace - 3 Bedroom Home

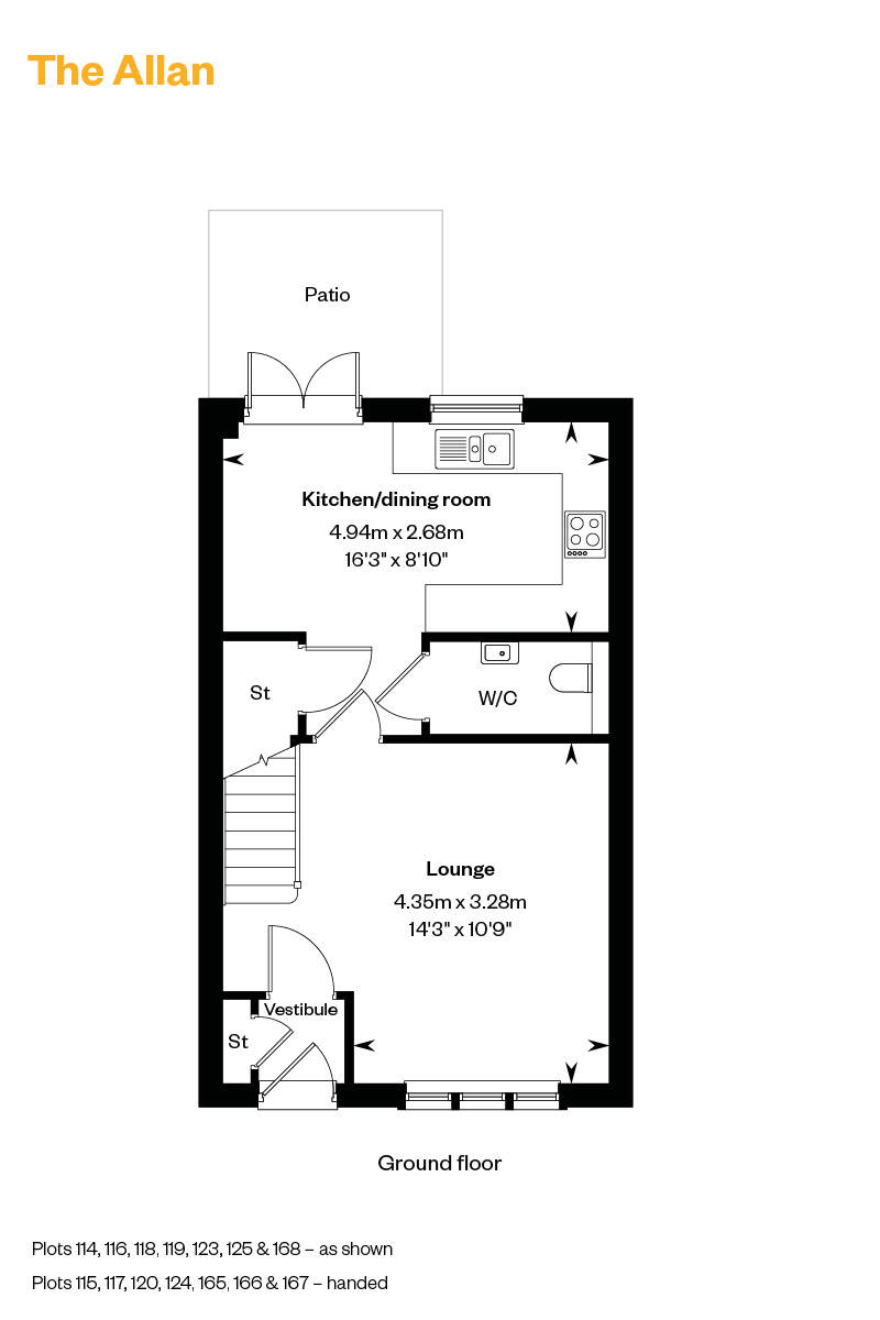
This sophisticated home provides the ideal in flexible family living space. The modern studio-designed kitchen and family/dining area is open plan, enjoying access to the patio and rear garden via French doors, allowing you to extend you living on a sunny day or when friends are round.

Downstairs you also enjoy a separate (yet interconnecting) lounge, downstairs WC, excellent storage and welcoming vestibule, while on the first floor you’ll be greeted by a spacious upper landing, off which find two double bedrooms and a single (perfect as a home office, nursery or hobby room), all enjoying fitted wardrobes.

The Allan’s light and airy ambience is complemented with a high specification family bathroom, including Porcenalosa tiling, illuminated mirror with demister pad, and Laufen sanitaryware and vanity unit.

What's more, all our Allan homes enjoy Siemens integrated applicance including oven, microwave and dishwasher included, as well as PV panels and access to EV charging.


HBF 5 Star Rated Builder New Consumer Code NHBC NHQC

Craighall Village – Colliers Gate, Millerhill


  • 3 Bedrooms

  • 1 Bathroom

  • 902 sq ft

  • Allan – Mid Terrace

Tenure: Freehold

Council Tax: Band E

EPC Rating: B

Property Type: Terrace


Make an enquiry
Enlarged view
The Allan - Showhome photography
Photography may have been enhanced in post-production and may include upgrades at additional cost. Computer Generated Images may show features fittings, décor, flooring and soft furnishings which are not fitted as standard in a Cala home. CGIs are used to suggest possible finishes that can be achieved in your home at an additional cost. Please consult a Cala representative for further details.

The Allan Showhome – Virtual Tour

This showhome is available to view at Millgate Lawns, arrange your viewing today.

The Allan Showhome – Video Tour
Arrow up

Thank you.

A Cala sales representative will be in touch soon to discuss your enquiry.