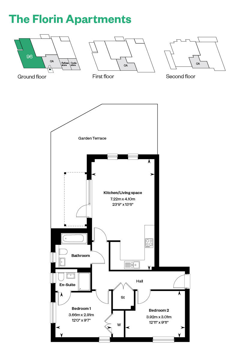
Plot 96: Florin Apartments – Ground Floor 2 Bed - 2 Bedroom Home

This beautifully laid-out 2 bedroom apartment offers generous living with a bright open-plan kitchen/living area, ideal for hosting guests or enjoying quiet evenings in. From the living space, step outside to a large wrap-around private terrace - an ideal spot for morning coffee or evening drinks.

Bedroom 1 features an en suite and fitted wardrobe, while bedroom 2 is ideal for guests or a home office. A modern bathroom, ample storage, and a welcoming hallway add to the convenience. This home is complete with an allocated parking space and EV charging point.   


HBF 5 Star Rated Builder New Consumer Code NHBC NHQC

The Glades at Mindenhurst, Deepcut


  • 2 Bedrooms

  • 2 Bathrooms

  • 775 sq ft

  • Florin Apartments – Ground Floor 2 Bed

Service Charge: £1639.75 P/A

Council Tax: Band Not Available

EPC Rating: B

Property Type: Apartment


Make an enquiry
Enlarged view
Images shown are taken from various Cala showhomes or have been generated by computer (for indicative purposes only and are not to be presumed to be entirely accurate.) Showhome images feature fittings, décor, flooring, soft furnishings and landscaping that are not included as standard in a Cala home. Images are used to suggest possible finishes that can be achieved in your home at an additional cost. Please consult a Sales Representative for further details. Some images have been enhanced.
Arrow up

Thank you.

A Cala sales representative will be in touch soon to discuss your enquiry.