Plot 75: Mcudden - 4 Bedroom Home

Only three remaining of The Mcudden - Act now or miss out!

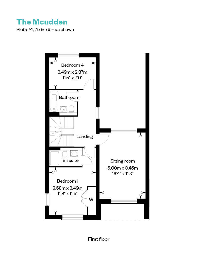
Style and space on three smart floors – topped with a wonderful private terrace on the second floor, ideal for sitting out relaxing with a drink or creating a rooftop garden. You could even opt for an outdoor gym: there’s a shower room up there along with two bedrooms. One could double as a study too, very handy for a growing family. On the first floor, the front facing bedroom is ensuite with fitted wardrobes, and bedroom four sits alongside the family bathroom.

We love the upstairs sitting room, and we think you will too - while downstairs there’s a roomy fitted kitchen with integrated appliances and a dining room that opens out into the garden. And to keep things neat, plenty of storage, a utility room and a cycle store.

Are you looking for Part Exchange*? or Assisted Move*? or ask about the Deposit Unlock*scheme. Talk to our Sales Consultants today.

*Terms and conditions apply.


HBF 5 Star Rated Builder New Consumer Code NHBC NHQC

Cala at Waterbeach


  • 4 Bedrooms

  • 3 Bathrooms

  • 1738 sq ft

  • Mcudden

Tenure: Freehold

EPC Rating: B

Property Type: Terrace


Make an enquiry
Enlarged view
Images shown are taken from various Cala showhomes or have been generated by computer (for indicative purposes only and are not to be presumed to be entirely accurate.) Showhome images feature fittings, décor, flooring, soft furnishings and landscaping that are not included as standard in a Cala home. Images are used to suggest possible finishes that can be achieved in your home at an additional cost. Please consult a Sales Representative for further details. Some images have been enhanced.
Arrow up

Thank you.

A Cala sales representative will be in touch soon to discuss your enquiry.