Plot 24: Anchor Apartment – 2 Bed Top Floor - 2 Bedroom Home

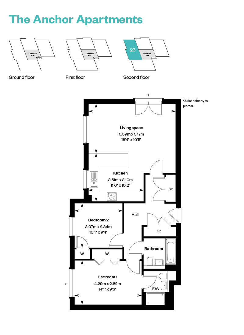
Three-zone living makes this the perfect top floor apartment for young families, couples or downsizers. The living/dining area enjoys generous proportions, with double glass doors allowing natural light to flood in.

The kitchen with the latest Bosch integrated appliances and wraparound peninsula allows just enough privacy while ensuring you’re still part of any family activity or special occasion. Wander past the family bathroom and notice the Laufen sanitaryware. Imagine a luxurious evening lying back and relaxing in style.

The main bedroom includes fitted wardrobes, providing elegant lines within this personal space. The larger of the two offers the ultimate pampering escape with an en suite.

This stylish apartment also boasts excellent storage throughout for extra practicality, lift access, secure entry plus an allocated parking space and EV charging access.


HBF 5 Star Rated Builder New Consumer Code NHBC NHQC

Queensferry Heights, South Queensferry


  • 2 Bedrooms

  • 2 Bathrooms

  • 787 sq ft

  • Anchor Apartment – 2 Bed Top Floor

Tenure: Freehold

Service Charge: £887.37 P/A

Council Tax: Band E

EPC Rating: B

Property Type: Apartment


Make an enquiry
Enlarged view
Queensferry Heights Show Apartment Gallery
Photography may have been enhanced in post-production and may include upgrades at additional cost. Computer Generated Images may show features fittings, décor, flooring and soft furnishings which are not fitted as standard in a Cala home. CGIs are used to suggest possible finishes that can be achieved in your home at an additional cost. Please consult a Cala representative for further details.

2 Bedroom Show Apartment Virtual Tour

Arrow up

Thank you.

A Cala sales representative will be in touch soon to discuss your enquiry.