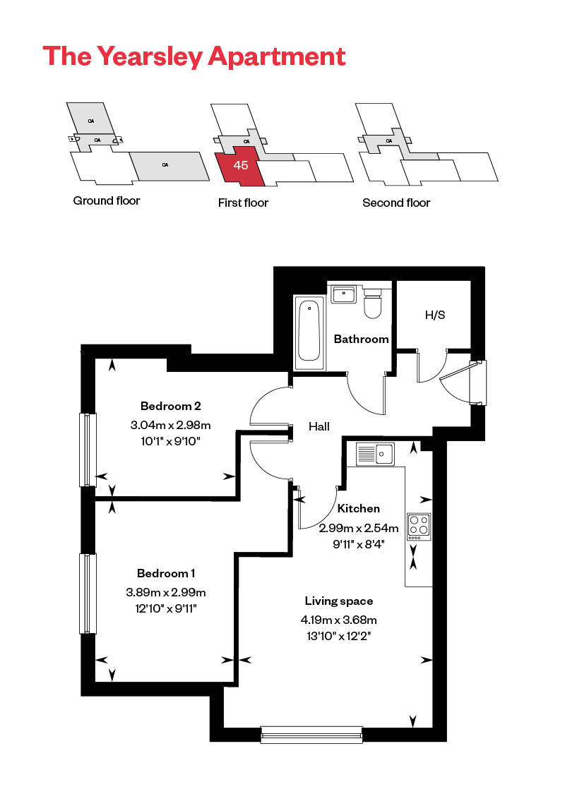
Plot 45: The Yearsley Apartment - First Floor - 2 Bedroom Home

This first floor apartment offers the perfect layout for modern living. The open-plan kitchen/living area provides a practical and inviting space—ideal for relaxing ‘me’ time or entertaining friends.

Plot 44, 46, 47: The apartment features one generously sized bedroom and a well-appointed bathroom, making it perfect for first time buyers and couples. Ample storage throughout ensures everything has its place, helping to keep your home effortlessly organized.

Plot 45: This thoughtfully designed two-bedroom apartment offers 679 sq. ft of well-utilized living space, ideal for small families, couples, or professionals seeking comfort and style. Each bedroom is generously sized, providing flexibility for use as a guest room, home office, or nursery. A sleek, modern family bathroom completes the home, enhancing its contemporary appeal with high-quality finishes.


HBF 5 Star Rated Builder New Consumer Code NHBC NHQC

Ingatestone Grove, Ingatestone


  • 2 Bedrooms

  • 1 Bathroom

  • 679.53 sq ft

  • The Yearsley Apartment - First Floor

Tenure: Leasehold

Council Tax: Band Not Available

Property Type: Apartment


Make an enquiry
Enlarged view
Images shown are taken from various Cala showhomes or have been generated by computer (for indicative purposes only and are not to be presumed to be entirely accurate.) Showhome images feature fittings, décor, flooring, soft furnishings and landscaping that are not included as standard in a Cala home. Images are used to suggest possible finishes that can be achieved in your home at an additional cost. Please consult a Sales Representative for further details. Some images have been enhanced.
Arrow up

Thank you.

A Cala sales representative will be in touch soon to discuss your enquiry.