Plot 108: Colville - 4 Bedroom Home

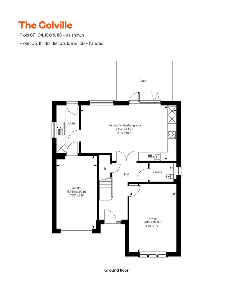
The Colville centres on a generous ground‑floor layout designed for both entertaining and everyday living. A large formal lounge provides a relaxing retreat, while the open‑plan kitchen, dining and family area forms the natural hub of the home, enhanced by garden access and natural light. A utility room supports daily routines.

Upstairs, four double bedrooms include two en‑suites and fitted storage. A fifth bedroom offers flexibility as a study, guest room or hobby space, supported by a modern family bathroom and an integral garage.

An integral single garage, driveway, utility room and excellent storage complete the home.


HBF 5 Star Rated Builder New Consumer Code NHBC NHQC

Mansefield Lea, East Calder

Plot 108 | £469,995


  • 4 Bedrooms

  • 3 Bathrooms

  • 1685 sq ft

  • Colville

Tenure: Freehold

Service Charge: £166.67 P/A

Council Tax: Band G

EPC Rating: B

Property Type: Detached


Make an enquiry

Help to move, built around you

Make our featured home yours

 The Coville is a spacious 4 bedroom plus study detached home and available with: 

★ Full LBTT paid* (which could equate to a saving of £20,349)

Plus

★ Flooring, Turf

And

★ £2,000 towards Legal Fees

If you have a home to sell, why not ask us about our Part Exchange service?

*for reservation by 30th June 2026. Terms & conditions apply.

Enlarged view
The Colville - Showhome photography
Photography may have been enhanced in post-production and may include upgrades at additional cost. Computer Generated Images may show features fittings, décor, flooring and soft furnishings which are not fitted as standard in a Cala home. CGIs are used to suggest possible finishes that can be achieved in your home at an additional cost. Please consult a Cala representative for further details.

The Colville Showhome - Virtual Tour

Please note some design, specification items and finishes may differ.

Arrow up

Thank you.

A Cala sales representative will be in touch soon to discuss your enquiry.