Plot 134: Orwell - 4 Bedroom Home

4 bedroom detached home with a carport

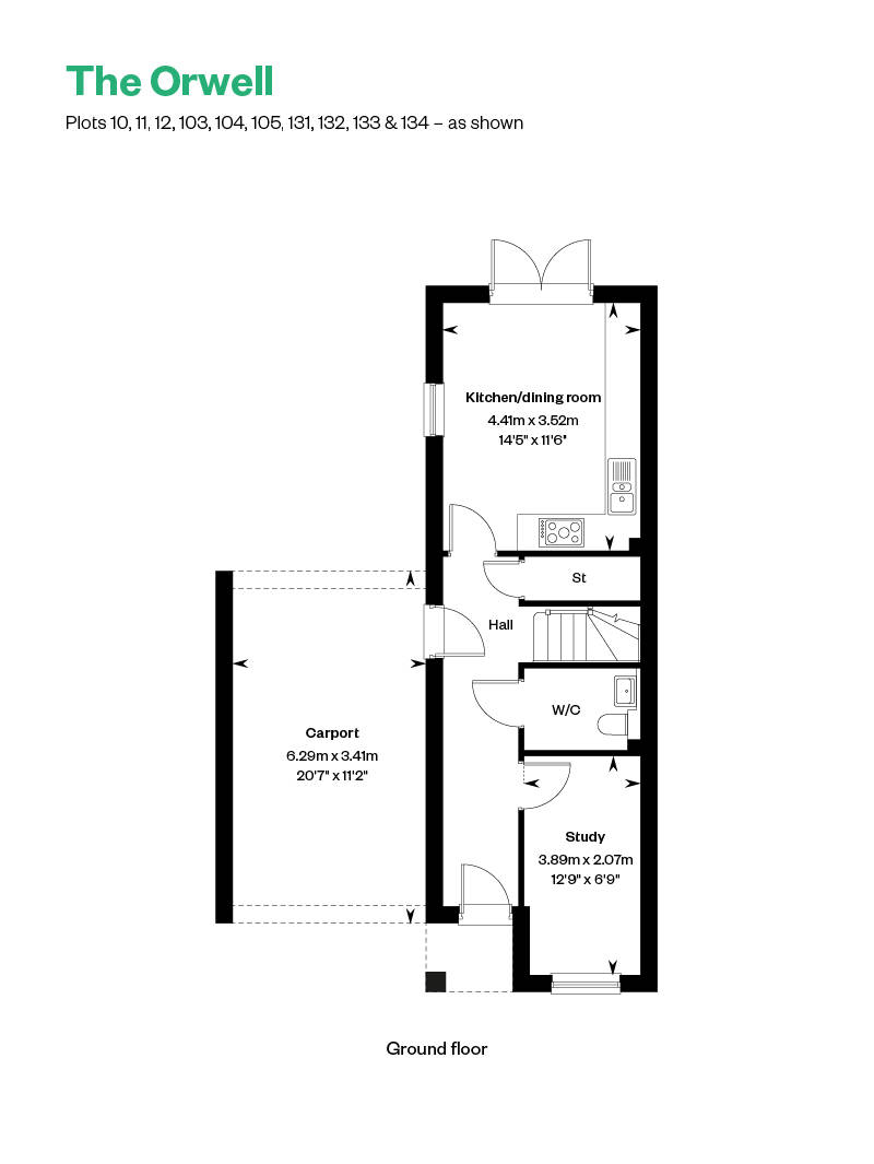
Enjoy flexibility and freedom on three floors, with a fresh and light feel throughout your family home. Down on the ground floor, the spacious, dual aspect kitchen/dining room opens out into your garden through patio doors, and there’s a separate study/den to the front, ideal for that homework session, for working from home or just for playing in. Your bikes and car have their own places too, with an integrated cycle store and car port.

The first floor is similarly impressive, with the landing opening out to a generous, light-filled sitting room through folding doors. Bedrooms 2 and 4 are both of a good size, and are complemented by a handy utility room and a family bathroom.

It’s the second floor that perhaps shines the most though – quite literally in the case of the roof terrace, the perfect place for enjoying a coffee in the morning sun. Good-sized bedroom one has an en-suite and built-in wardrobes, while bedroom three is also well-proportioned and overlooks the garden at the rear.


HBF 5 Star Rated Builder New Consumer Code NHBC NHQC

Netherhall Gardens, Cambridge


  • 4 Bedrooms

  • 2 Bathrooms

  • 1608 sq ft

  • Orwell

Property Type: Detached


Make an enquiry
Enlarged view
Images shown are taken from various Cala showhomes or have been generated by computer (for indicative purposes only and are not to be presumed to be entirely accurate.) Showhome images feature fittings, décor, flooring, soft furnishings and landscaping that are not included as standard in a Cala home. Images are used to suggest possible finishes that can be achieved in your home at an additional cost. Please consult a Sales Representative for further details. Some images have been enhanced.
Arrow up

Thank you.

A Cala sales representative will be in touch soon to discuss your enquiry.