Plot 116: Oundle - Detached - 4 Bedroom Home

Offering flexible living on three levels, The Oundle accommodates everyone in contemporary comfort. The kitchen/dining room and family room share an open plan design, featuring French doors to the garden, along with a separate utility room and WC.

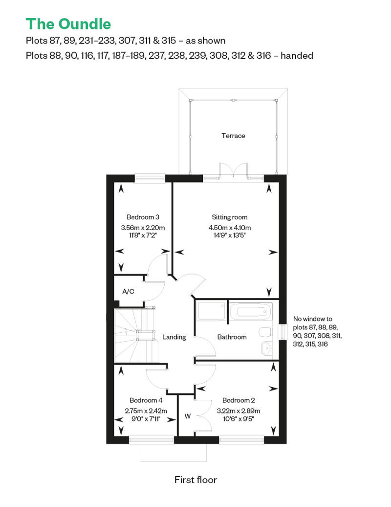
Upstairs, the generous sitting room extends through French doors onto an elegant terrace, joined by a large four-piece bathroom and three bedrooms to choose from. Or you can retreat to the impressive en suite bedroom one with dressing area and private study on the top floor.

Are you looking for Part Exchange*? or Assisted Move*? or ask about the Deposit Unlock*scheme. Talk to our Sales Consultants today.

*Terms and conditions apply.


HBF 5 Star Rated Builder New Consumer Code NHBC NHQC

Cala at Hampton Lakes


  • 4 Bedrooms

  • 2 Bathrooms

  • 1769 sq ft

  • Oundle - Detached

Tenure: Freehold

Service Charge: £480.31 P/A

Council Tax: Band Not Available

EPC Rating: B

Property Type: Detached


Make an enquiry
Enlarged view

The Oundle Showhome open daily

Come and view our Oundle showhome and discover the height of contemporary living. Open daily from 10.30am-5pm.

Alternatively, take a virtual tour from the comfort of your own home.

 

Images shown are taken from various Cala showhomes or have been generated by computer (for indicative purposes only and are not to be presumed to be entirely accurate.) Showhome images feature fittings, décor, flooring, soft furnishings and landscaping that are not included as standard in a Cala home. Images are used to suggest possible finishes that can be achieved in your home at an additional cost. Please consult a Sales Representative for further details. Some images have been enhanced.
Discover how a three-storey home could offer you flexible, family living
Arrow up

Thank you.

A Cala sales representative will be in touch soon to discuss your enquiry.